top of page

![]() Site Analysis | ![]() Conceptual |
|---|---|
![]() Conceptual | ![]() Plan |
![]() Sections | ![]() Elevation |
![]() Sections | ![]() Roof stucture |
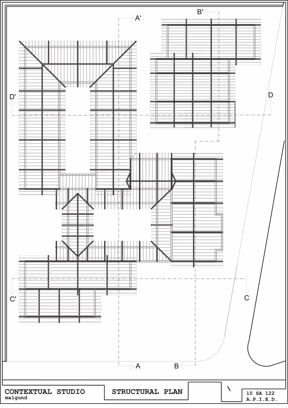
NATUROPATHY CENTRE
A Naturopathy centre designed for a context of hot and humid climate in Malgund(ganpatiphule, konkan coast). The basic typology of the context and the space hierarchy is adorned in its pure form. The building is divided into four major parts where the activities are divided accordingly.
The roof is the major element which is priorly considered. To protect against the scorching heat and heavy rainfall, sloping roofs are used with huge array of level differences adding elevational element too. The hierarchy of the functions remains the same as the existing fabric. A grid organisation of 5:6 is used for the design.
bottom of page







